도면&조감도
본문
After시공 후
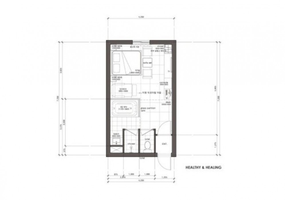
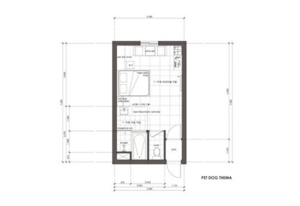
호텔 건물의 구조와 배치를 상세하게 나타낸 도면입니다. 호텔 도면은 여러 층으로 나누어져 있고 각 층마다 다양한 공간과 시설이 배치되어 있습니다.Before시공 전
호텔 건물의 구조와 배치를 상세하게 나타낸 도면입니다. 호텔 도면은 여러 층으로 나누어져 있고 각 층마다 다양한 공간과 시설이 배치되어 있습니다.도면&조감도
본문
After시공 후
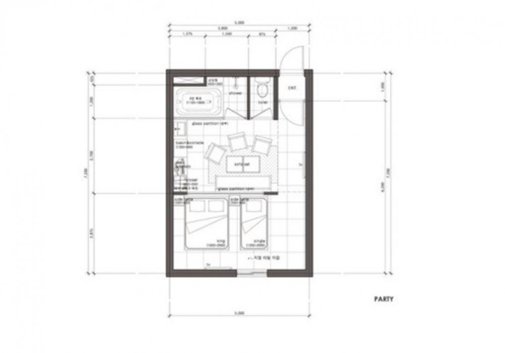
호텔 건물의 구조와 배치를 상세하게 나타낸 도면입니다. 호텔 도면은 여러 층으로 나누어져 있고 각 층마다 다양한 공간과 시설이 배치되어 있습니다.Before시공 전
호텔 건물의 구조와 배치를 상세하게 나타낸 도면입니다. 호텔 도면은 여러 층으로 나누어져 있고 각 층마다 다양한 공간과 시설이 배치되어 있습니다.